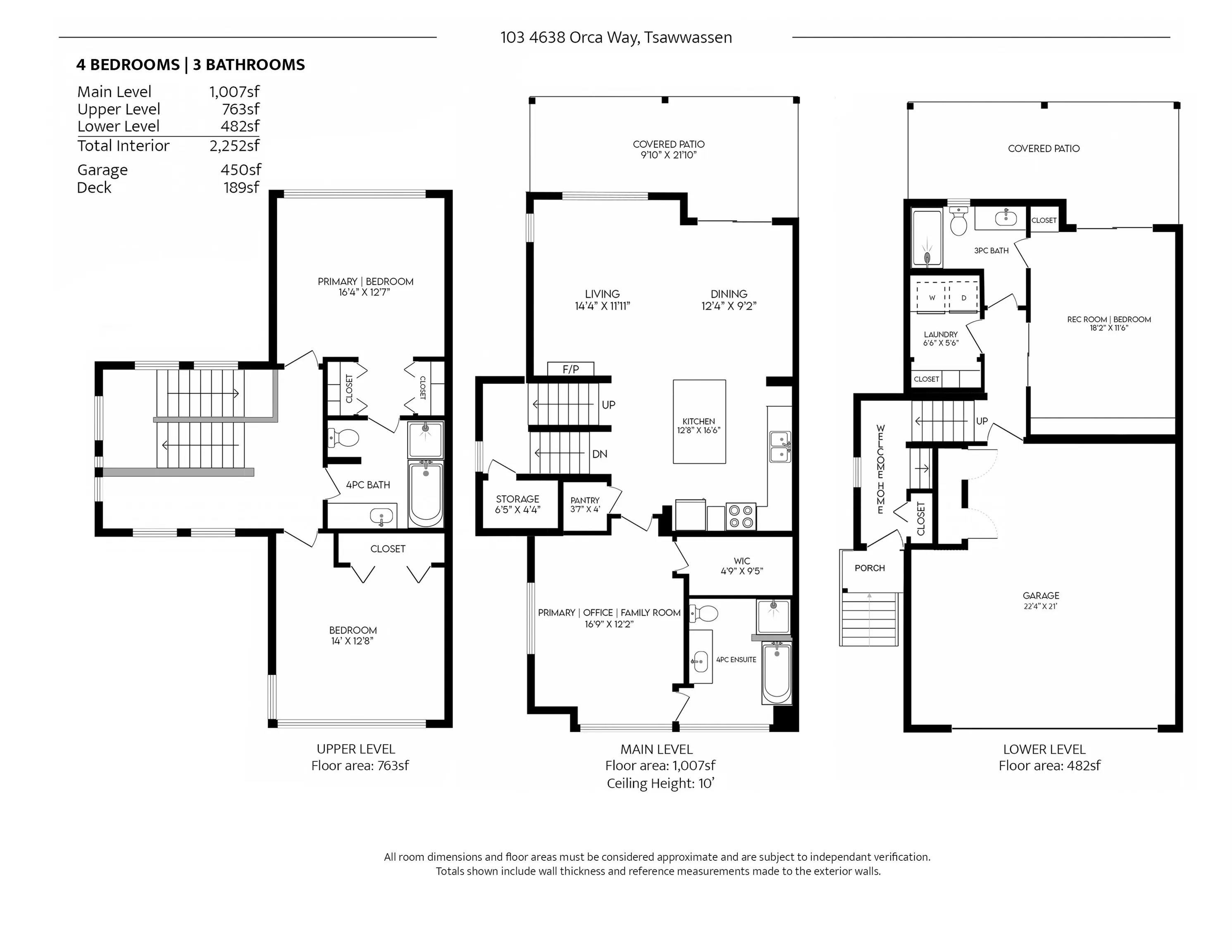
Property Type
Townhome, 3 Level Split
Parking
2 garage, 3 parking
MLS #
R3063564
Size
2252 sqft
Basement
None
Listed on
-
Lot size
-
Tax
$4,335.96 /yr
Days on Market
-
Year Built
2020
Maintenance Fee
$654.87 /mo
