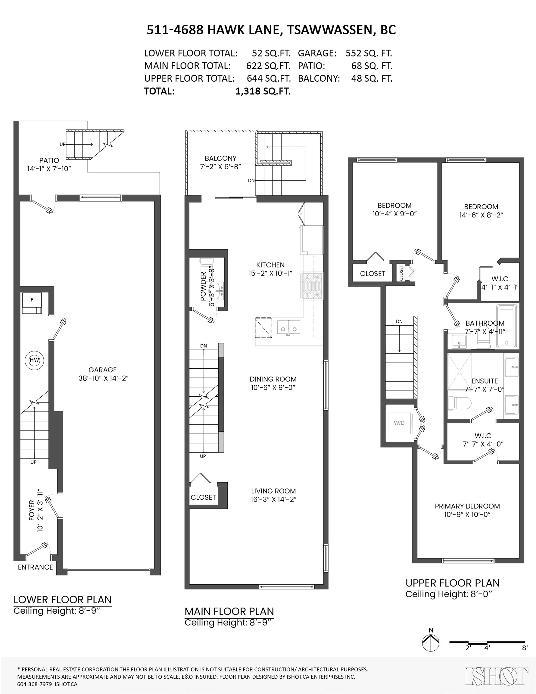
Property Type
Townhome, 3 Storey
Parking
2 garage, 2 parking
MLS #
R3060681
Size
1318 sqft
Basement
None
Listed on
-
Lot size
-
Tax
$3,847.96 /yr
Days on Market
-
Year Built
2018
Maintenance Fee
$354.42 /mo
